电 话:0515-88662008
联系人:乐先生
手 机:13605107045
邮 箱:jskbkj@163.com
网 址:www.jskbkj.com
联系人:乐先生
手 机:13605107045
邮 箱:jskbkj@163.com
网 址:www.jskbkj.com
您现在的位置是:首页 >> 产品展示
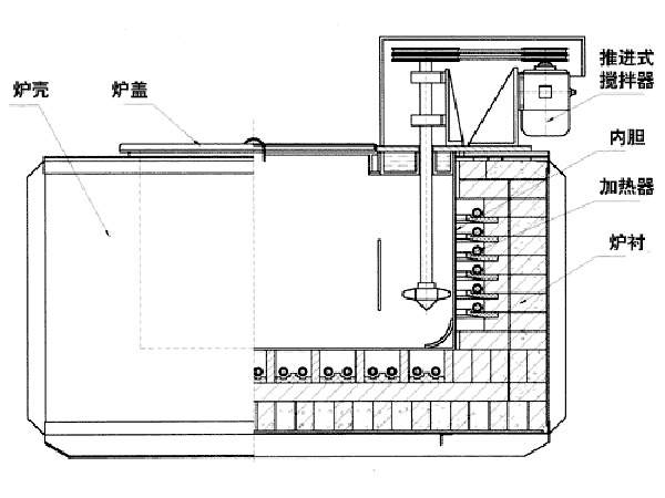
硝盐炉
用途:
主要供形变铝合金、高强结构钢及工具钢的等温热处理。
基本组成:
主要由炉体、炉盖、内槽、加热器、推进式搅拌器及控制系统等组成。
设备结构特点特性:
•内胆炉壳为1Cr18Ni9Ti不锈钢钢板全密焊,防止漏盐。
•分为内热式、外热式。
•推进式搅拌器搅拌,使硝盐熔液温度更加均匀。
•高精度数显仪表控温、中圆图记录仪表超温报警,使用安全可靠。
型号及规格参数表:
【关闭】
主要供形变铝合金、高强结构钢及工具钢的等温热处理。
基本组成:
主要由炉体、炉盖、内槽、加热器、推进式搅拌器及控制系统等组成。
设备结构特点特性:
•内胆炉壳为1Cr18Ni9Ti不锈钢钢板全密焊,防止漏盐。
•分为内热式、外热式。
•推进式搅拌器搅拌,使硝盐熔液温度更加均匀。
•高精度数显仪表控温、中圆图记录仪表超温报警,使用安全可靠。
型号及规格参数表:
| 型号 |
额定功率 (KW) |
额定温度 (℃) |
电源 | 最大装炉量(kg) | 加热元件接法 | 相数(P) | 空炉升温时间(h) | 工作室尺寸长*宽*高(mm) |
| KA-XY6-25 | 25 | 600 |
380V;3P; 50Hz |
200 | 串 | 单 | ≤1.5 | 500*500*600 |
| KA-XY6-45 | 45 | 550 | 400 | Y | 3 | ≤1.5 | 500*600*700 | |
| KA-XY6-60 | 60 | 650 | 500 | Y | 3 | ≤1.5 | 600*600*1000 | |
| KA-XY6-72 | 72 | 650 | 600 | △ | 3 | ≤2.0 | 800*520*700 | |
| KA-XY6-105 | 105 | 650 | 700 | △ | 3 | ≤2.0 | 750*750*900 | |
| KA-XY6-140 | 140 | 650 | 800 | △ | 3 | ≤3.5 | 2500*1400*2000 | |
| KA-XY6-180 | 180 | 650 | 500 | △;△ | 3 | ≤3.5 | 2800*600*1400 |


